Vacant Land in Royal Sky Estate

R650,000
Property Details

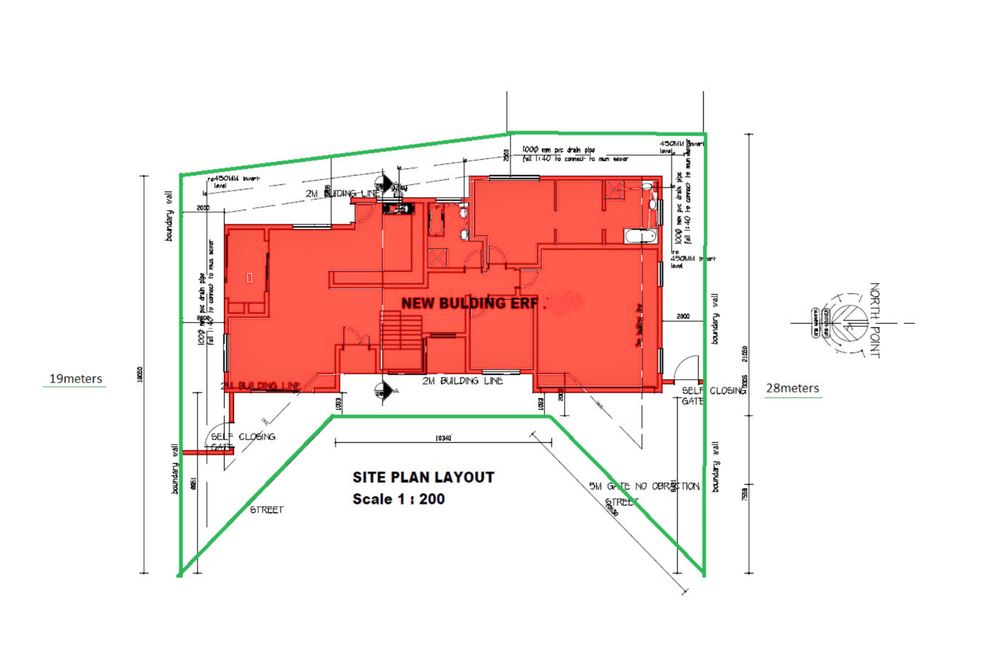
Discover a rare opportunity to construct your dream home on this 378 sqm freestanding plot, nestled within a secure and prestigious estate in Annlin. This prime location offers a harmonious blend of tranquility and convenience, making it the perfect setting for family life.

The groundwork has been expertly prepared, with soil removal completed and the area backfilled with high-quality G5 material, ensuring a stable foundation for your future construction. Included with the purchase are plans for a luxurious five-bedroom, double-story home, thoughtfully designed to accommodate modern living. These plans are ready for submission for council approval, giving you a significant head start on your building journey.

Seize the chance to create a bespoke living space within this thriving community. Contact Lebo today to explore this exceptional property and take the first step towards turning your vision into reality.

Property Features
Property Type
Vacant Land Residential
Land Size
378m²
Costs and Terms
Rates & Taxes
±R1,450
Levy
±R1,000
Location
Make an enquiry
Interested in this property? Please fill in your details below, and we will contact you as soon as possible.
By clicking on "submit" you agree to our privacy policy.
Property Alerts
Receive email alerts for properties matching your criteria.